Multilocale in affitto

Chieri, Via Guglielmo Marconi
€ 630 / mese
4 locali 4 locali
84 Mq 84 Mq
1 bagno 1 bagno

Multilocale in affitto

Chieri, Via Guglielmo Marconi

Descrizione annuncio

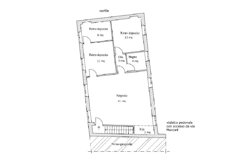
L'ufficio è situato a pochi passi da Piazza Cavour, al primo ed ultimo piano di un piccolo stabile privo di ascensore. L'ingresso è indipendente con portoncino blindato e si apre sul primo locale finestrato che accompagna agli altri tre locali, di cui due comunicanti ed al servizio finestrato. L'immobile è stato ristrutturato nel 2007 ed il riscaldamento è autonomo a gas metano. Le spese condominiali sono irrisorie, circa 160 euro all'anno. Esclusivamente ad uso ufficio.

Mostra tutto

Nelle vicinanze

Trasporto pubblico Trasporto pubblico
Chieri
Chieri
990 m
Robbio
Robbio
130 m
Cavour
Cavour
220 m
Ricariche auto elettriche Ricariche auto elettriche
LIDL Chieri
1,6 Km
Scuole Scuole
Scuole
390 m
Scuola Primaria Nostra Signora della Scala
590 m
Istituto d'Istruzione Superiore "B.Vittone"
950 m
Scuola Media Statale Mario Ludovico Quarini
1,3 Km
Scuola Statale "Maddalena"
2,2 Km
Farmacia Farmacia
Piazza
200 m
Farmacia Burzio
360 m
Comunale 1
370 m
Farmacia Regis
440 m
Farmacia Comunale 2
440 m
Ospedali Ospedali
Ospedali
1,9 Km
Supermercati Supermercati
In's Mercato
530 m
Carrefour Market
610 m
Mercatò
740 m
Ekom
740 m
Mercatò Chieri - Via Riva
1,1 Km
Negozi Negozi
Benetton
210 m
Wood Sas di Bosco Franco & C.
480 m
Il Forno di Ronco
600 m
Tutto Moda
610 m
Giordo Salvatore
650 m
Bar Bar
Corso Matteotti 69
890 m
Il Dolce Caffè
1,2 Km
Ristoranti Ristoranti
Kombu
60 m
Eataly in Collina
200 m
K2 Pizza & Kebab
240 m
Le Terrazze
520 m
La Cantina del Convento
520 m
Mostra tutto

Caratteristiche

Rif.:
60588432
Piano:
1 di 1 (Piano alto)
Arredamento:
Assente
Condizionamento:
Assente
Ascensore:
No
Riscaldamento:
Autonomo
Mostra tutto
Prezzo Prezzo
€ 630 / mese
Spese annue Spese annue
€ 160

Classe Energetica

F
F
F
F
F
F
F
F
F
EP globale non rinnovabile:
269.19 kW h/m² anno
EP globale rinnovabile:
91.21 kW h/m² anno
EP invernale del fabbricato:
EP estiva del fabbricato:
Anno di costruzione:
1970
Riscaldamento:
Autonomo
Tipo impianto:
A radiatori
Tipo alimentazione:
Metano

Ti interessa visionare l'immobile?

Fissa un appuntamento  Fissa un appuntamento

Richiedi informazioni

Clicca su Leggi per aprire l'informativa
* Questi campi sono obbligatori
Affiliato
Studio Chierese Sas
Via Vittorio Emanuele II, 59/L 10023 Chieri (TO)

Il nostro staff


  • Dario Gullace
    Affiliato

  • Valentina Scarso
    Responsabile

  • Gianluca Torretta
    Collaboratore

  • Marta Vacchina
    Coordinatrice
Via Vittorio Emanuele II, 59/L 10023 Chieri (TO)
Zona: Chieri Centro-Turriglie-Borgo Venezia-Gialdo-San Silvestro-Pessione
Mostra su mappa
Orari: Dal lunedì al venerdì 09:00-12.30 / 15:00-19.30 ; sabato 9.00-12.30 / 15:00-18.00
Affiliato
Studio Chierese Sas
Via Vittorio Emanuele II, 59/L 10023 Chieri (TO)

2026 Tecnocasa Franchising S.p.A. - P. IVA 08365160152 - Via Monte Bianco 60/A 20089 Rozzano (MI). Ogni agenzia ha un proprio titolare ed è autonoma. Privacy policy | Policy utilizzo | Cookie policy