6 locali in vendita

Chieri, Via volta
€ 295.000
5 locali 5 locali
130 Mq 130 Mq
2 bagni 2 bagni

6 locali in vendita

Chieri, Via volta

Descrizione annuncio

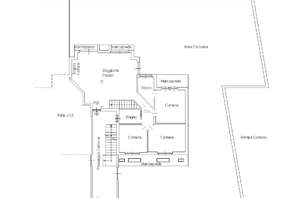
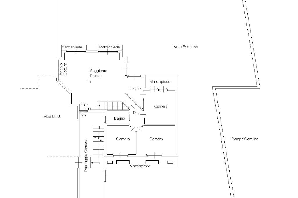
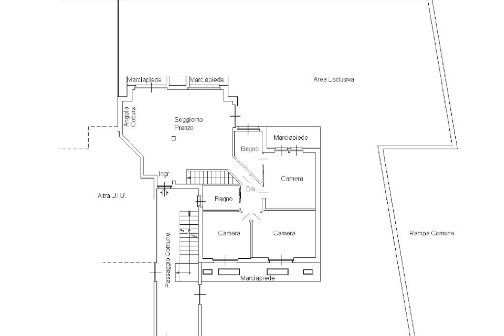
L’appartamento, oggetto di una ristrutturazione eseguita nel 2019, si trova in un piccolo contesto realizzato nel 2005. L’ingresso, da portoncino blindato, da accesso al soggiorno di ampie metrature con cucina a vista. La zona notte è separata da un disimpegno che accompagna alle camere da letto e sono tre. La camera matrimoniale risulta luminosa e dispone di bagno en suite dotato di vasca. Le restanti camere da letto sono anch’esse comode e confortevoli. Nel secondo bagno è presente la doccia. Dal soggiorno vi è accesso, tramite una scala, a un locale rifinito e finestrato. Vi è anche una cantina.

Tutte le stanze hanno uscita diretta sul giardino di circa 260 mq e circonda sui tre lati la soluzione. Questo dispone di impianto di irrigazione ed è in parte pavimentato con pietra di Luserna e in parte verde e piantumato. Inoltre, è presente una casetta in legno, utile per riporre gli attrezzi per la cura del giardino.

Il riscaldamento è autonomo, con recente sostituzione della caldaia, e dispone di impianto di condizionamento (caldo e freddo). È presente l'impianto di antifurto volumetrico e perimetrale con sensori nelle tapparelle. In più, sono state installate videocamere di sorveglianza. Le spese di gestione sono contenute.

Il condominio è stato oggetto di interventi di riqualificazione energetica. È stato posizionato il cappotto, sono stati sostituiti tutti gli infissi con quelli in PVC con doppio vetro e inserite le tende da sole.

Vi è la possibilità di acquistare i due box auto direttamente collegati con l’appartamento ad euro 14 mila l’uno.

Mostra tutto

Nelle vicinanze

Trasporto pubblico Trasporto pubblico
Chieri
Chieri
780 m
Conte Rossi
Conte Rossi
100 m
Martiri di Via Fani
Martiri di Via Fani
140 m
Ricariche auto elettriche Ricariche auto elettriche
LIDL Chieri
110 m
Scuole Scuole
Scuola Media Statale Mario Ludovico Quarini
350 m
Scuola Primaria Nostra Signora della Scala
1,0 Km
Scuole
1,2 Km
Istituto d'Istruzione Superiore "B.Vittone"
1,3 Km
Scuola Statale "Maddalena"
1,8 Km
Farmacia Farmacia
Santa Croce
470 m
Farmacia
540 m
Farmacia Regis
1,1 Km
Farmacia Burzio
1,2 Km
Farmacia Comunale 2
1,2 Km
Ospedali Ospedali
Ospedali
1,3 Km
Supermercati Supermercati
Lidl
160 m
Mercatò Chieri - Via Riva
500 m
Ekom
750 m
Penny
990 m
In's Mercato
1,4 Km
Negozi Negozi
Il Forno di Ronco
900 m
Wood Sas di Bosco Franco & C.
1,0 Km
Giordo Salvatore
1,2 Km
Tutto Moda
1,2 Km
Benetton
1,4 Km
Bar Bar
Il Dolce Caffè
470 m
Corso Matteotti 69
870 m
Ristoranti Ristoranti
Self Service My Break
200 m
Ex Mattatoio
440 m
City2 Istanbul Turkish Kebab
850 m
La Cantina del Convento
1,2 Km
Old Building Pub Pizzeria
1,3 Km
Mostra tutto

Caratteristiche

Rif.:
61117674
Piano:
Terra di 2
Totale piani:
2
Box:
2
Camere da letto:
3
Arredamento:
Assente
Mostra tutto
Prezzo Prezzo
€ 295.000
Prezzo box Prezzo box
€ 28.000
Rata mutuo Rata mutuo
€ 1.391 / mese
Spese annue Spese annue
€ 1.000
Proponi il tuo prezzoProponi il tuo prezzo
Immobile valutato con T·Valuta

Classe Energetica

D
D
D
D
D
D
D
D
D
EP globale non rinnovabile:
157.11 kW h/m² anno
EP globale rinnovabile:
0.46 kW h/m² anno
EP invernale del fabbricato:
EP estiva del fabbricato:
Anno di costruzione:
2005
Riscaldamento:
Autonomo
Tipo impianto:
A radiatori
Tipo alimentazione:
Metano

Ti interessa visionare l'immobile?

Fissa un appuntamento  Fissa un appuntamento

Richiedi informazioni

Clicca su Leggi per aprire l'informativa
* Questi campi sono obbligatori

Calcola il tuo mutuo

Semplice e senza impegno
Anticipo

( % )
Mutuo

( % )

pochi semplici passi

inserisci i tuoi dati
Questionario completato
Grazie per aver richiesto un appuntamento senza impegno con un nostro Consulente del Credito e Assicurativo.

Hai inserito correttamente tutti i dati necessari e a breve riceverai una e-mail con un link da convalidare per inviare i tuoi dati.
Affiliato
Studio Chierese Sas
Via Vittorio Emanuele II, 59/L 10023 Chieri (TO)

Il nostro staff


  • Dario Gullace
    Affiliato

  • Valentina Scarso
    Responsabile

  • Gianluca Torretta
    Collaboratore

  • Marta Vacchina
    Coordinatrice
Via Vittorio Emanuele II, 59/L 10023 Chieri (TO)
Zona: Chieri Centro-Turriglie-Borgo Venezia-Gialdo-San Silvestro-Pessione
Mostra su mappa
Orari: Dal lunedì al venerdì 09:00-12.30 / 15:00-19.30 ; sabato 9.00-12.30 / 15:00-18.00
Affiliato
Studio Chierese Sas
Via Vittorio Emanuele II, 59/L 10023 Chieri (TO)

2025 Tecnocasa Franchising S.p.A. - P. IVA 08365160152 - Via Monte Bianco 60/A 20089 Rozzano (MI). Ogni agenzia ha un proprio titolare ed è autonoma. Privacy policy | Policy utilizzo | Cookie policy