Rustico in vendita

Chieri, Str. dei Finigialdi - Livorna
€ 50.000
128 Mq 128 Mq

Rustico in vendita

Chieri, Str. dei Finigialdi - Livorna

Descrizione annuncio

Il rustico si trova in un tranquillo contesto residenziale composto da poche unità abitative, immerso nel verde e a breve distanza dal centro di Chieri e dai principali servizi, tra cui il centro commerciale “Il Gialdo”. Libero su quattro lati e circondato da un ampio giardino privato pianeggiante, offre un’ottima privacy e un’atmosfera rilassata.

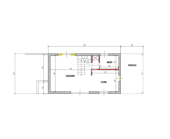
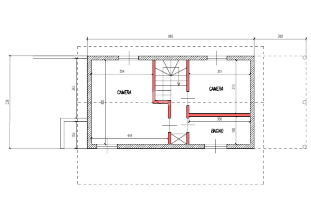
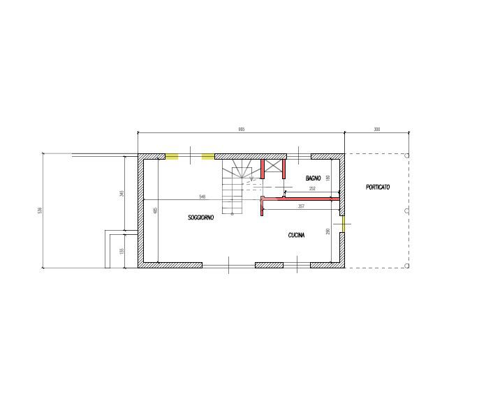
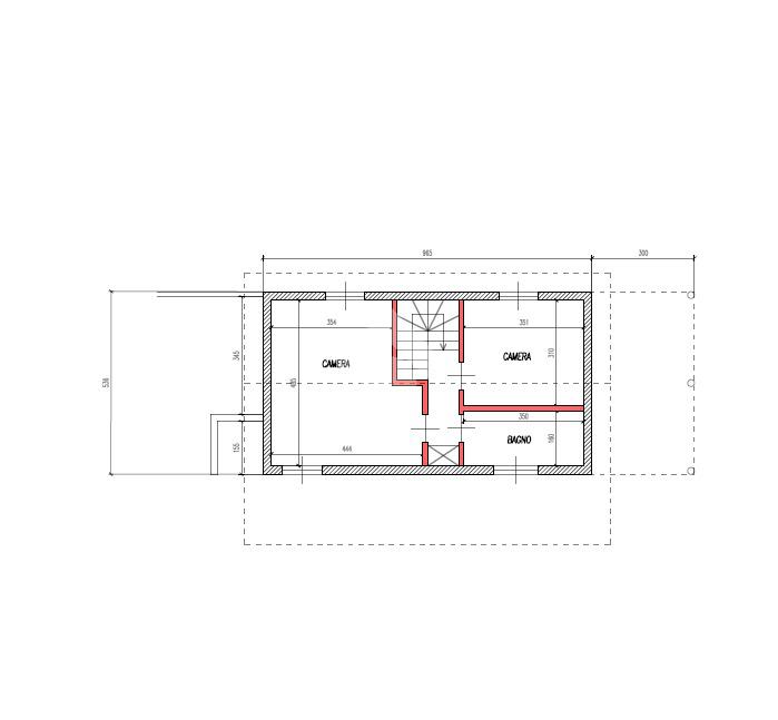
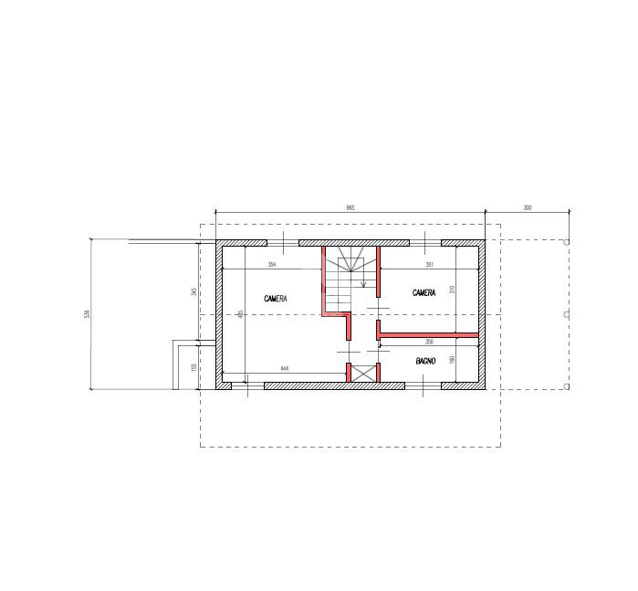
Attualmente l’immobile è composto, al piano terra, da un locale deposito con ambiente adiacente, mentre al piano superiore si trova l’ex fienile, oltre a una legnaia esterna. È già stato approvato il piano di recupero che consente di trasformare il rustico in una vera e propria abitazione: al piano terreno è prevista la creazione di due ambienti distinti, un soggiorno e una cucina separata, entrambi di metrature importanti, oltre a bagno e antibagno; al piano primo sarà possibile realizzare due camere matrimoniali e un secondo bagno, ottenendo così spazi ampi, equilibrati e funzionali.

L’intervento può beneficiare delle agevolazioni fiscali previste per il recupero edilizio e la ristrutturazione, rappresentando un’occasione ideale per chi desidera personalizzare la propria abitazione in un contesto tranquillo, verde e comodo ai servizi.

Mostra tutto

Nelle vicinanze

Trasporto pubblico Trasporto pubblico
Pessione
Pessione
2,3 Km
Chieri
Chieri
2,9 Km
Mondo N. 1
Mondo N. 1
1,8 Km
Dell' Industria N.24
Dell' Industria N.24
1,8 Km
Pessione
Pessione
2,4 Km
Ricariche auto elettriche Ricariche auto elettriche
LIDL Chieri
2,1 Km
Scuole Scuole
Scuola Primaria Pessione
2,0 Km
Scuole
2,3 Km
Scuola primaria secondaria di Riva Presso Chieri
2,4 Km
Scuola Media Statale Mario Ludovico Quarini
2,4 Km
Farmacia Farmacia
Farmacia
1,7 Km
Farmacia Aliberti
2,3 Km
Santa Croce
2,5 Km
Ospedali Ospedali
Ospedali
2,8 Km
Supermercati Supermercati
Penny
1,7 Km
Lidl
2,1 Km
Borello
2,5 Km
Mercatò Chieri - Via Riva
2,6 Km
Ekom
2,9 Km
Bar Bar
Il Dolce Caffè
2,4 Km
Corso Matteotti 69
2,9 Km
Ristoranti Ristoranti
Osteria Da Piera
2,3 Km
Lucky Lucy Saloon
2,3 Km
Self Service My Break
2,3 Km
Ex Mattatoio
2,6 Km
City2 Istanbul Turkish Kebab
3,0 Km
Mostra tutto

Caratteristiche

Rif.:
61113031
Piano:
Su più livelli di 2
Totale piani:
2
Arredamento:
Assente
Condizionamento:
Assente
Ascensore:
No
Mostra tutto
Prezzo Prezzo
€ 50.000
Rata mutuo Rata mutuo
€ 237 / mese
Spese annue Spese annue
€ 0
Proponi il tuo prezzoProponi il tuo prezzo

Classe Energetica

Questo immobile è esente da classe energetica
Anno di costruzione:
1962
Riscaldamento:
Assente

Ti interessa visionare l'immobile?

Fissa un appuntamento  Fissa un appuntamento

Richiedi informazioni

Clicca su Leggi per aprire l'informativa
* Questi campi sono obbligatori

Calcola il tuo mutuo

Semplice e senza impegno
Anticipo

( % )
Mutuo

( % )

pochi semplici passi

inserisci i tuoi dati
Questionario completato
Grazie per aver richiesto un appuntamento senza impegno con un nostro Consulente del Credito e Assicurativo.

Hai inserito correttamente tutti i dati necessari e a breve riceverai una e-mail con un link da convalidare per inviare i tuoi dati.
Affiliato
Studio Chierese Sas
Via Vittorio Emanuele II, 59/L 10023 Chieri (TO)

Il nostro staff


  • Dario Gullace
    Affiliato

  • Valentina Scarso
    Responsabile

  • Gianluca Torretta
    Collaboratore

  • Marta Vacchina
    Coordinatrice
Via Vittorio Emanuele II, 59/L 10023 Chieri (TO)
Zona: Chieri Centro-Turriglie-Borgo Venezia-Gialdo-San Silvestro-Pessione
Mostra su mappa
Orari: Dal lunedì al venerdì 09:00-12.30 / 15:00-19.30 ; sabato 9.00-12.30 / 15:00-18.00
Affiliato
Studio Chierese Sas
Via Vittorio Emanuele II, 59/L 10023 Chieri (TO)

2026 Tecnocasa Franchising S.p.A. - P. IVA 08365160152 - Via Monte Bianco 60/A 20089 Rozzano (MI). Ogni agenzia ha un proprio titolare ed è autonoma. Privacy policy | Policy utilizzo | Cookie policy